Oferta archiwalna
Poniższa oferta została wycofana ze sprzedaży. Osoby zainteresowane podobnymi ofertami prosimy o bezpośredni kontakt z agentem lub biurem nieruchomości.
archiwalna
  • Liczba pokoi:2
  • Powierzchnia:52 m2
  • Cena: 585 000 zł

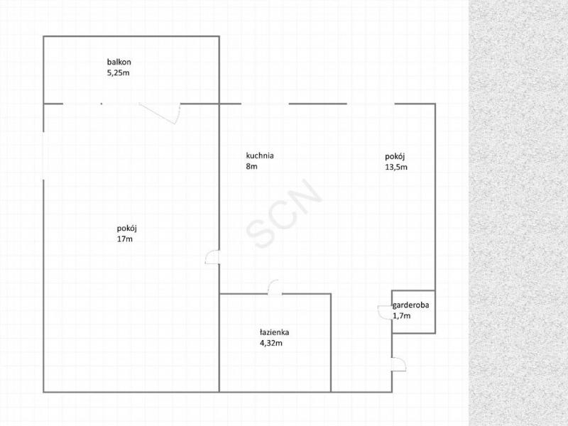
PARTER Z DUŻĄ LOGGIĄ, DWA POKOJE, GARDEROBA

Mieszkanie w Jabłonnie, na osiedlu Akademijna.
W środku osiedla, z dużym parkingiem.
Wygodnie zaaranżowana przestrzeń:
- pokój dzienny z dużą, otwartą i widną kuchnią - idealne miejsce do przebywania razem
- przestronna sypialnia z wyjściem na dużą loggię (5,25m), która jest doskonałą przestrzenią wypoczynkową
- garderoba
- łazienka (z wanną, z funkcją prysznica)
- przedpokój z szafą w zabudowie.

Mieszkanie idealne do komfortowego mieszkania, w ciszy ale z łatwym dostępem do infrastruktury usługowo-handlowej, z dobrą komunikacją.

Mieszkanie bez barier! - swobodny wjazd z wózkiem, bez schodów..
Wysokie! - aż 2,77m wysokości
Gotowe do zamieszkania - w pełni wyposażona, przestronna kuchnia.
Bezpieczne: alarm (czujniki na oknach i drzwiach)
W budynku wózkarnia do dyspozycji mieszkańców.


* W galerii zostały umieszczone wizualizacje.

ZAPRASZAM NA SPOTKANIE I DO ZAKUPU.
Jako profesjonalny pośrednik nieruchomości pobieramy wynagrodzenie w formie prowizji.
Zapewniamy pełne zaangażowanie, dbając o Państwa bezpieczeństwo i komfort podczas procesu transakcyjnego.

Nad jakością obsługi oferty czuwa pani Magdalena Łabuć - licencjonowany pośrednik w obrocie nieruchomościami, nr licencji 19420

Numer ofertyM-118655-16
Typ ofertyMieszkanie na sprzedaż
Cena585 000 zł (11 241 zł/m2)
Czynsz800 zł
Rynekwtórny
Powierzchnia52 m2
Piętro0/2
Liczba pokoi2
Rok budowy2008
Materiał budowyinne
Mediainternet, telewizja
Inf. dodatkowe-
nazwa powierzchnia opis
kuchnia 8.07m2 -
przedpokój 8.5m2 podłoga: terakota, szafa wnękowa
toaleta - -
łazienka 4.32m2 podłoga: terakota, glazura
pokój 13.5m2 podłoga: deski, strona świata: płn-zach
pokój 16.9m2 podłoga: deski, strona świata: płn-zach
Województwomazowieckie
Powiatlegionowski
MiastoJabłonna
Dzielnica-
UlicaAkademijna