Oferta archiwalna
Poniższa oferta została wycofana ze sprzedaży. Osoby zainteresowane podobnymi ofertami prosimy o bezpośredni kontakt z agentem lub biurem nieruchomości.
archiwalna
  • Liczba pokoi:3
  • Powierzchnia:45 m2
  • Cena: 627 000 zł

Nowe mieszkanie 3- pokojowe na kameralnym osiedlu w Milanówku.

1 piętro nowoczesnego budynku w niskiej zabudowie.

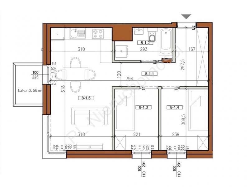
Pow. 45,5 m2:
- salon z aneksem kuchennym
- dwie sypialnie
- łazienka
- przedpokój z miejscem na dużą szafę

Z salonu wyjście na balkon o pow. 2,66 m2

Południowo - zachodnia ekspozycja okien.

Stan deweloperski.

W cenie zagwarantowane miejsce parkingowe na ogrodzonym terenie.

Do centrum miasta 1 km.

Polecam
Nad jakością obsługi oferty czuwa pan Adach Paweł - licencjonowany pośrednik w obrocie nieruchomościami, nr licencji 11655

Numer ofertyM-87879-5
Typ ofertyMieszkanie na sprzedaż
Cena627 000 zł (13 933 zł/m2)
Rynekpierwotny
Powierzchnia45 m2
Piętro1/2
Liczba pokoi3
Rok budowy2023
Materiał budowyinne
Mediainternet, telewizja
Inf. dodatkowebalkon
nazwa powierzchnia opis
kuchnia - -
przedpokój 8.57m2 podłoga: szlichta
toaleta - -
łazienka 4.07m2 podłoga: szlichta
pokój 18.88m2 podłoga: szlichta, strona świata: płd-zach
pokój 7.21m2 podłoga: szlichta, strona świata: płd
pokój 6.66m2 podłoga: szlichta, strona świata: płd
Województwomazowieckie
Powiatgrodziski
MiastoMilanówek
Dzielnica-