Spokojna miejscowość, blisko Zalewu Zegrzyńskiego
mazowieckie, legionowski, Dosin
- DRUKUJ
- UDOSTĘPNIJ
- 710 000 zł5 462 zł/m2
- ZAPAMIĘTAJ
- Liczba pokoi:5
- Powierzchnia:130 m2
- Cena: 710 000 zł
Opis nieruchomości
Do sprzedaży dom jednorodzinny dwulokalowy w Dosinie
Lokalizacja: Dosin, gm. Serock, okolice Zalewu Zegrzyńskiego
Przedstawiamy Państwu wyjątkową ofertę sprzedaży domu jednorodzinnego dwulokalowego, położonego w cichej i spokojnej miejscowości Dosin, niedaleko Zalewu Zegrzyńskiego. Ta atrakcyjna nieruchomość stanowi idealne miejsce dla rodzin szukających spokoju i komfortu, a jednocześnie bliskości przyrody i infrastruktury.
Termin ukończenia inwestycji listopad/grudzień 2026 roku
Charakterystyka domu:
Lokale połączone są jedynie garażami
Powierzchnia lokalu: 130 m
Stan: deweloperski
Powierzchnia działki: 445 m
Opis wnętrza:
Dom składa się z:
Parter:
Przestronnego salonu z jadalnią i aneksem kuchennym (35,5 m)
Pokoju/gabinetu (8,5 m)
Wiatrołapu
WC
Garażu
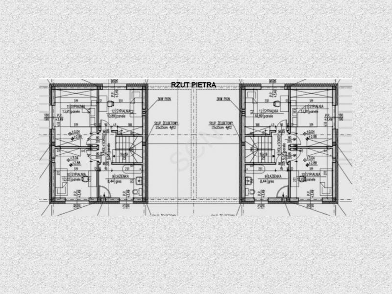
Piętro:
Trzech sypialni (11, 12, 14 m)
Holu
Łazienki
W budynku tynki gipsowe oraz wszystkie instalacje: hydrauliczna, elektryczna, alarmowa, TV i internet. Dom wyposażony w instalację gazową ale na życzenie klienta możliwy jest montaż pompy ciepła za dopłatą 35 tys. Ogrzewanie podłogowe rozprowadzone w całym domu.
Zewnętrze i otoczenie:
Działka będzie ogrodzona, na podjeździe kostka brukowa, chodnik oraz opaska wokół domu. W najbliższym sąsiedztwie domy jednorodzinne i dwulokalowe.
Media: prąd, gaz, wodociąg, światłowód.
Lokalizacja i infrastruktura:
Nieruchomość zlokalizowana jest w malowniczej okolicy, z łatwym dostępem do Zalewu Zegrzyńskiego, co sprzyja rekreacji i relaksowi. W pobliżu znajduje się dobrze zaopatrzony sklep spożywczy oraz przystanek autobusowy, co zapewnia wygodę codziennego życia.
Kontakt:
Zainteresowanych zapraszamy do kontaktu w celu uzyskania dodatkowych informacji oraz umówienia się na prezentację nieruchomości.
Jako profesjonalny pośrednik nieruchomości pobieramy wynagrodzenie w formie prowizji.
Zapewniamy pełne zaangażowanie, dbając o Państwa bezpieczeństwo i komfort podczas procesu transakcyjnego.
Nad jakością obsługi oferty czuwa pani Magdalena Łabuć - licencjonowany pośrednik w obrocie nieruchomościami, nr licencji 19420
Szczegóły ogłoszenia
| Numer oferty | D-118732-16 |
|---|---|
| Typ oferty | Dom na sprzedaż |
| Cena | 710 000 zł (5 462 zł/m2) |
| Rynek | pierwotny |
| Powierzchnia | 130 m2 |
| Pow. działki | 445 m2 |
| Liczba pokoi | 5 |
| Rok budowy | 2025 |
| Materiał budowy | beton komórkowy |
| Zabezpieczenia | - |
| Ogrzewanie | gazowe, kominkowe |
| Media | prąd, woda, gaz, szambo |
| Inf. dodatkowe | garaż |
Lokalizacja i okolica
| Województwo | mazowieckie |
|---|---|
| Powiat | legionowski |
| Miasto | Dosin |
| Dzielnica | - |