Nowe osiedle, pompa ciepła, fotowoltaika!
mazowieckie, grodziski, Grodzisk Mazowiecki
- DRUKUJ
- UDOSTĘPNIJ
- 719 000 zł8 560 zł/m2
- ZAPAMIĘTAJ
- Liczba pokoi:3
- Powierzchnia:84 m2
- Cena: 719 000 zł
Opis nieruchomości
Nowa inwestycja w Grodzisku Maz. w doskonałej lokalizacji.
Środkowy segment.
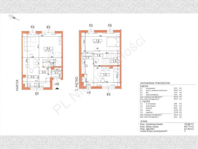
Parter (39 m2):
- salon o pow. 36 m2- z aneksem kuchennym
- wc
- wiatrołap
Piętro (39 m2):
- 2 sypialnie 11,5 i 16 m2
- łazienka 8,6 m2
Dom zaprojektowano bez skosów na piętrze (pomieszczenia pełnej wysokości).
Stan deweloperski.
Wysoka dbałość o każdy detal wykończenia.
Wszystkie media miejskie (przyłącza w budynku): pompa ciepła, fotowoltaika, światłowód.
Całość ogrodzona i zagospodarowana:
- 2 miejsce parkingowe
- oświetlenie zewnętrzne
Zakończenie inwestycji do 30.09.2026 r.
Sprzedawca wystawia fakturę VAT, co zapewnia zwolnienie kupującego z podatku PCC.
Do PKP i szkoły 1,5 km
Polecam
Nad jakością obsługi oferty czuwa pan Adach Paweł - licencjonowany pośrednik w obrocie nieruchomościami, nr licencji 11655
Szczegóły ogłoszenia
| Numer oferty | D-88241-5 |
|---|---|
| Typ oferty | Dom na sprzedaż |
| Cena | 719 000 zł (8 560 zł/m2) |
| Rynek | pierwotny |
| Powierzchnia | 84 m2 |
| Pow. działki | 67 m2 |
| Liczba pokoi | 3 |
| Rok budowy | 2025 |
| Materiał budowy | silikat |
| Zabezpieczenia | - |
| Ogrzewanie | - |
| Media | prąd, woda, kanalizacja |
| Inf. dodatkowe | - |
Lokalizacja i okolica
| Województwo | mazowieckie |
|---|---|
| Powiat | grodziski |
| Miasto | Grodzisk Mazowiecki |
| Dzielnica | - |